KLEINE LADEN-, GEWERBE- ODER PRAXISFLÄCHE!


VERMIETUNGSAUFGABE

Der FlethKieker - eines der interessantesten Gebäude in der historischen Altstadt von Buxtehude!

Hier haben Sie die Möglichkeit, ab dem Mai 2026 – oder nach Absprache - zu arbeiten.

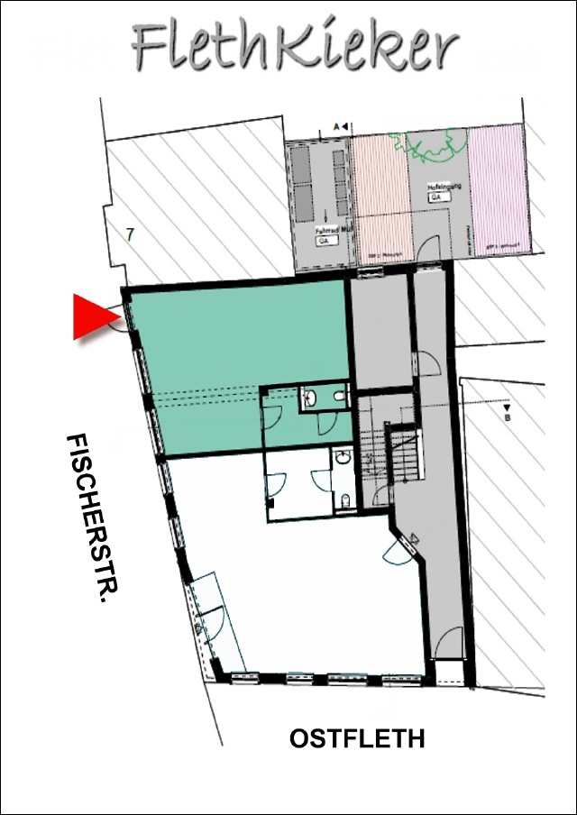
Wir bieten Ihnen EXKLUSIV eine Laden-, Gewerbe- oder Praxisfläche im FlethKieker in der Größe von rd. 60 qm zur Anmietung an.

Für einen Gastronomiebetrieb steht diese Fläche NICHT zur Verfügung!

Für Rückfragen stehen wir Ihnen gerne in einem persönlichen Gespräch zur Verfügung.


ECKDATEN:

Baujahr / Fertigstellung:
Ende 2016

Mietbeginn: Ab 1. Mai 2026.

Nutzflächen Läden: rd. 60 qm Gesamtfläche

Aussenfassade: Farbliches Wärmeverbundsystem.

Dach: Satteldach mit roten Tonpfannen.

Bodenbelag: Planken-Parkett mit Hamburger-Leiste

Heizung: Brennwert-Gas-Heizung, Sonnenkollektoren zur Brauchwassererwärmung, Fussbodenheizung in allen Einheiten.

Besichtigung: Nur nach Vereinbarung mit unserem Büro.

Mietpreis: 900,00 € zzgl. NK und Kaution

Wichtig:
Die jeweilige Mindestvertragslaufzeit bei Anmietung beträgt 2 Jahre.

Kaution: Die Mietsicherheit beträgt 3 Netto-Monatsmieten, die vom Mieter in Form einer Bankbürgschaft erbracht wird.

Courtage: Unsere Vermittlungsprovision 2 Nettomonatsmieten zzgl. gesetzl. MwSt. vom Mietzins. Diese ist bei Abschluss des Mietvertrages vom Mieter an uns zu zahlen.

Alle Angaben sind nach bestem Wissen gemacht, eine Gewähr kann jedoch nicht übernommen werden.
Zwischenvermietung bleibt vorbehalten.





LAGEPLAN




AUSSENANSICHT




GRUNDRISS



ZUM VERGRÖSSERN, BITTE DOPPELKLICK AUF DEM ENTSPRECHENDEN BILD !



MIETE: 900,- €


zzgl. NK und Kaution



Mit diesem Immobilienangebot bieten wir Ihnen als Makler unsere Vermittlungs- und Nachweisleistung an.

Unsere Vermittlungsprovision 2 Nettomonatsmieten zzgl. gesetzl. MwSt. vom Mietzins.
Diese ist bei Abschluss des Mietvertrages vom Mieter an uns zu zahlen.

Alle in dieser Expertise stehenden Angaben zum Mietobjekt sind von dem Eigentümer, Behörden, Banken und anderen Dritten zur Verfügung gestellt worden.

Selbstverständlich wurden alle Angaben mit größter Sorgfalt überprüft.
Wir können für die Richtigkeit und die Aktualität dieser Angaben jedoch trotz hoher Sorgfalt keine Gewähr und keine Haftung übernehmen.

Wir können auch nicht gewährleisten, dass zum Zeitpunkt des Zugangs des Exposés oder zu einem späteren Zeitpunkt das Objekt noch zur Vermietung steht.
Das Angebot ist insoweit unverbindlich und freibleibend.


(C) 2023 - Alle Rechte vorbehalten

Diese Seite drucken